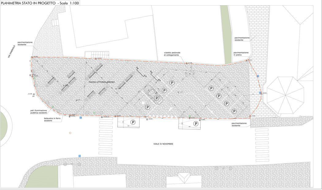
Piazza VITTORIO AMEDEO
LOCATION: Cesana Torinese, ItalyYEAR: 2011CLIENT: Comune di Cesana Torinese
DESCRIPTION:
Progettazione preliminare per la riqualificazione della Piazza Vittorio Amedeo.
Strada Filatoio, 51 - 10072 CASELLE TORINESE (TO)
011 99 12 753
info@meeng.it
P.I.: 10957730012